服務熱線
021-33617555
全國服務熱線:
021-33617555
F745X隔膜式遙控浮球閥產品概述:
隔膜式遙控浮球閥是兼具多種功能的水力操作式閥門。主要安裝于水池或高架水塔的進水口處,當水位達到設定的高度時,主閥由浮球導控制關閉進水口停止供水;當水位下降后,主閥由浮球導閥控制打開進水口向水池注水,實現自動補水。液位控制精確,不受水壓干擾;隔膜式遙控浮球閥可隨水池的高度及使用空間任意位置安裝,維護、調試、檢查方便、密封可靠,使用壽命長。隔膜式閥門性能可靠、強度高、動作平穩適用于450口徑以下的管道。
結構特點
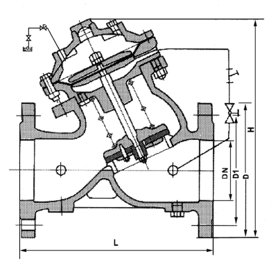
本產品由主閥和浮球閥及接管系統組成,主閥閥體采用全通道、直流式、流線型設計,并采取膜片式或活塞式兩類結構。接管系統由浮球閥、球閥和接管組成。
本產品直接利用浮球導閥進行液面控制,不需要其它裝置和能源,結構簡單,維護保養簡便,控制不受水壓影響,液面控制準確度高,密封可靠。
工作原理
當管道從進水端給水時,由于球閥、浮球閥是常開的,水通過微型過濾器、球閥B、控制室、球閥A、浮球閥進入水池,主閥控制室不形成壓力,主閥開啟,水塔(池)供水。
當水塔(池)的水面上升至設定高度時,浮球浮起關閉浮球閥,控制室水壓升高推動主閥關閉,供水停止。當水池水面下降后,浮球閥重新開啟,控制室水壓下降,主閥再次開啟繼續供水,保持液面的設定高度。
工作特點
1、關閉嚴密可靠。主閥密封采用橡膠密封環密封,關閉動力由主閥控制室自動形成,保持合適關閉力,密封壽命和可靠性高。
2、操作方便,無需為閥門另配電控系統。閥門隨液面高度變化自動開啟和關閉。
3、閥體采用了全通道、直流式、流線型設計。水力損失小,節能效果好。
功能與用途
本閥門安裝在水塔、水池的進口端管路上,完成保持水塔、水池液面的規定高度的功能。
本系列閥門產品廣泛用于高層建筑、生活區等供水管網系統的水塔、水池等設施的液面高度自動控制。
主要技術參數
公稱壓(Mpa) |
殼體試驗壓力(Mpa) |
密封試驗壓力(Mpa) |
調壓范圍(Mpa) |
較低動作壓力(Mpa) |
適用介質 |
介質溫度(℃) |
1.0 |
1.5 |
1.1 |
0.09-0.8 |
≥0.07 |
水 |
0-80 |
1.6 |
2.4 |
1.76 |
0.15-1.4 |
|||
2.5 |
3.75 |
2.75 |
0.2-2.0 |
主要零件材料
零件名稱 |
零件材料 |
閥體 閥蓋 |
WCB |
閥座 閥盤 |
銅合金/2Cr13 |
密封圈 O型圈 |
丁腈橡膠 |
閥桿 |
2Cr13 |
彈簧 |
50CrVA |
缸套 活塞(活塞型) |
2Cr13 |
膜片(膜片型) |
夾織物丁腈橡膠 |
調節閥 球閥 |
銅合金 |
過濾器 |
不銹鋼 |
部件列表:
1、浮球2、流量調節閥3、過濾器
連接尺寸
DN |
L |
H |
D mm |
D1 mm |
b mm |
D2 mm |
n-Φd |
||||||||||
mm |
mm |
PN1.0 |
PN1.6 |
PN2.5 |
PN1.0 |
PN1.6 |
PN2.5 |
PN1.0 |
PN1.6 |
PN2.5 |
PN1.0 |
PN1.6 |
PN2.5 |
PN1.0 |
PN1.6 |
PN2.5 |
|
40 |
240 |
270 |
150 |
150 |
150 |
110 |
110 |
110 |
18 |
18 |
18 |
88 |
88 |
84 |
4-17.5 |
4-17.5 |
4-18 |
50 |
240 |
270 |
165 |
165 |
165 |
125 |
125 |
125 |
20 |
20 |
20 |
102 |
102 |
99 |
4-17.5 |
4-17.5 |
4-18 |
65 |
270 |
340 |
185 |
185 |
185 |
145 |
145 |
145 |
20 |
20 |
22 |
122 |
122 |
118 |
4-17.5 |
4-17.5 |
8-18 |
80 |
300 |
400 |
200 |
200 |
200 |
160 |
160 |
160 |
22 |
22 |
24 |
133 |
133 |
132 |
8-17.5 |
8-17.5 |
8-18 |
100 |
350 |
440 |
220 |
220 |
235 |
180 |
180 |
190 |
24 |
24 |
24 |
158 |
158 |
156 |
8-17.5 |
8-17.5 |
8-22 |
125 |
400 |
460 |
250 |
250 |
270 |
210 |
210 |
220 |
26 |
26 |
26 |
184 |
184 |
184 |
8-17.5 |
8-17.5 |
8-26 |
150 |
480 |
500 |
285 |
285 |
300 |
240 |
240 |
250 |
26 |
26 |
28 |
212 |
212 |
211 |
8-22 |
8-22 |
8-26 |
200 |
500 |
640 |
340 |
340 |
360 |
295 |
295 |
310 |
28 |
30 |
30 |
268 |
268 |
274 |
8-22 |
12-22 |
12-26 |
250 |
605 |
690 |
395 |
405 |
425 |
350 |
355 |
370 |
28 |
32 |
32 |
320 |
320 |
330 |
12-22 |
12-26 |
12-30 |
300 |
700 |
820 |
445 |
460 |
485 |
400 |
410 |
430 |
28 |
32 |
34 |
370 |
370 |
389 |
12-22 |
12-26 |
16-30 |
350 |
800 |
950 |
505 |
520 |
555 |
460 |
470 |
490 |
30 |
36 |
38 |
430 |
430 |
448 |
16-22 |
16-26 |
16-33 |
400 |
900 |
1400 |
565 |
580 |
620 |
515 |
525 |
550 |
32 |
38 |
40 |
482 |
482 |
503 |
16-26 |
16-30 |
16-36 |
450 |
1000 |
1580 |
615 |
640 |
670 |
565 |
585 |
600 |
32 |
40 |
42 |
532 |
550 |
548 |
20-26 |
20-30 |
20-36 |
500 |
1100 |
1600 |
670 |
715 |
730 |
620 |
650 |
660 |
34 |
42 |
44 |
585 |
585 |
609 |
20-26 |
20-33 |
20-36 |
600 |
1300 |
1815 |
780 |
840 |
845 |
725 |
770 |
770 |
36 |
48 |
46 |
685 |
685 |
720 |
20-30 |
20-36 |
20-39 |
700 |
1400 |
2040 |
895 |
910 |
960 |
840 |
840 |
845 |
40 |
54 |
50 |
800 |
800 |
820 |
24-30 |
24-36 |
24-42 |
800 |
1500 |
2350 |
1015 |
1025 |
1085 |
950 |
950 |
990 |
44 |
58 |
54 |
905 |
905 |
925 |
24-33 |
24-39 |
24-48 |
900 |
1700 |
2606 |
1115 |
1125 |
1185 |
1050 |
1050 |
1090 |
46 |
62 |
58 |
1005 |
1005 |
1028 |
28-33 |
28-39 |
28-48 |
1000 |
1900 |
2765 |
1230 |
1255 |
1320 |
1160 |
1170 |
1210 |
50 |
66 |
62 |
1110 |
1110 |
1140 |
28-36 |
28-42 |
28-56 |
1200 |
2050 |
2950 |
1455 |
1485 |
1530 |
1380 |
1390 |
1420 |
56 |
52 |
70 |
1330 |
1328 |
1350 |
32-39 |
32-48 |
32-55 |
1400 |
2200 |
3180 |
1675 |
1685 |
1755 |
1590 |
1590 |
1640 |
62 |
58 |
76 |
1530 |
1530 |
1560 |
36-42 |
36-48 |
36-60 |
1600 |
2400 |
3400 |
1915 |
1930 |
1955 |
1820 |
1820 |
1860 |
68 |
64 |
84 |
1750 |
1750 |
1780 |
40-48 |
40-55 |
40-60 |
F745X遙控浮球閥:
用途Purpose
安裝在水池、水塔的進水管道中,當水池水位達到預設定水位時,閥門自動關閉;當水位下降時,閥門自動開啟補水。
特點Feature
1、關閉嚴密可靠。采用牢的O型環密封,利用液壓控制原理,使滑盤關閉力與進水壓力成正比,密封可靠性高。
2、過流量大。閥體采用全通道流線型設計,流體阻力小,流量大。
3、運行安全。利用水力操作,可自動控制水塔或水池的液面,液位控制準確度高。
4、使用維護方便。主閥安裝水池外面,調試檢查方便,維修簡單。


